Wohnung mit Garten 1050 Wien

1 / 18

2 / 18

18 / 18
Beschreibung
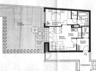
Besichtigung: "Open House" am So., 01.03.2026 um 13.00-15.00 Uhr. Storkgasse 14/2, 1050 Wien. Wohnung (unmöbliert) bestehend aus • Vorraum • WC • Wohnzimmer/Küche (Wohnküche) • Schlafzimmer • Abstellraum • Bad mit Badewanne • Terrasse 8m2 • eigener Garten 60m2, Wasseranschluss • Kein Kelle..
mehr anzeigen
Details
- Objektart
- Erdgeschosswohnung
- Angebotstyp
- Angebot
- Heizart
- Nah- bzw. Fernwärme
- Lage
- zentral, gute Infrastruktur, Ruhelage
- Vertragsart
- Miete
mehr anzeigen
Anbieter
Martina
Standort
1050 Wien, Margareten
Bitte beachte: Die aus den Anzeigen resultierenden Verträge (Kauf, Miete, Tausch, ...) kommen immer nur zwischen dem Interessenten und dem jeweiligen Anbieter / Inserent zustande, niemals mit dem Bazar. Vertragliche Ansprüche sind daher stets allein gegen den ausgewiesenen Vertragspartner (“Anbieter”) geltend zu machen.
Ad-ID: 1636893
Zuletzt aktualisiert: 23.02.2026 13:01
