großes Baugrundstück - sehr gute Lage in 2112 Hetzmannsdorf

1 / 4

2 / 4

4 / 4
Beschreibung
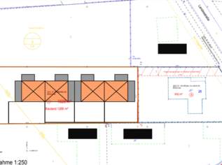
Zum Verkauf gelangt ein attraktives Baugrundstück in ruhiger, gewachsener Wohnlage in 2112 Hetzmannsdorf, nur wenige Minuten von Korneuburg und Wien entfernt. Die Gesamtgrundstücksfläche beträgt 1.828 m², davon 1.266 m² Bauland (Wohngebiet) und 562 m² Grünland. Erlaubt sind Reihenhäuser oder bis zu..
mehr anzeigen
Details
- Objektart
- Grundstück
- Angebotstyp
- Angebot
- Vertragsart
- Kauf
- Kaufpreis
- 539.000
- Grundfläche
- 1.828
mehr anzeigen
Anbieter
Benjamin & Anita
Standort
Kreuzstraße
2112 Gemeinde Harmannsdorf
Anbieter
Benjamin & Anita
Standort
Kreuzstraße
2112 Gemeinde Harmannsdorf
Bitte beachte: Die aus den Anzeigen resultierenden Verträge (Kauf, Miete, Tausch, ...) kommen immer nur zwischen dem Interessenten und dem jeweiligen Anbieter / Inserent zustande, niemals mit dem Bazar. Vertragliche Ansprüche sind daher stets allein gegen den ausgewiesenen Vertragspartner (“Anbieter”) geltend zu machen.
Ad-ID: 1513297
Zuletzt aktualisiert: 02.11.2025 13:29
